华为UPS5000-H-1200kVA UPS电源
- : 暂无价格
-
累计评价0 -
|
华为UPS5000-H-1200kVA UPS电源
2.5.1 三相四线
图 2-9 UPS 外观
( 1 )功率柜 (2)旁路柜 (3)监控显示模块
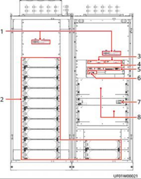
图 2-10 UPS 内部结构
( 1 )防雷器和防雷开关 (2)功率模块 (3)防雷盒
(4)假面板 (5)控制模块 (6)智能检测卡
( 7 )旁路控制模块 (8)旁路模块
C口 说明
控制模块上方的假面板可安装选配件ECM扩展插框。
2.5.2 三相三线
图 2-11 外观
( 1 )功率柜 (2)旁路柜 (3)监控显示模块
(4)电感柜
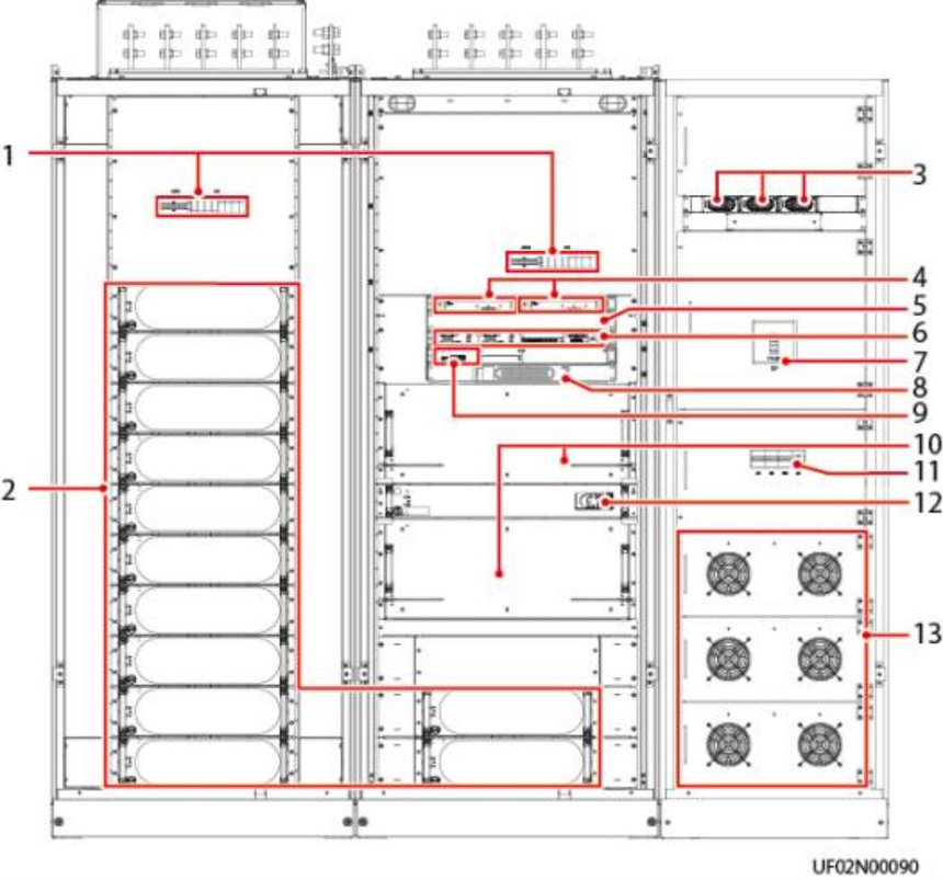
图 2-12 内部结构
( 1 )防雷器和防雷开关 (2)功率模块 (3)电感柜电源模块安装位置
(4)防雷盒 (5)假面板 (6)控制模块
( 7 )电感柜总开关QF (8)旁路风扇电源模块 (9)智能检测卡
( 10)旁路模块 ( 11 )电感柜风扇电源开关QS1 ( 12)旁路控制模块 ~ 4
( 13)风扇
C口 说明
控制模块上方的假面板可安装选配件ECM扩展插框。









