首页>租赁产品>华为ups电源>华为UPS5000-E-200kVA UPS电源
详细说明

华为UPS5000-E-200kVA UPS电源

  • 暂无价格
  • 累计评价0
华为UPS5000-E-200kVA UPS电源

华为UPS5000-E-200kVA UPS电源

2-8 UPS5000-E-200K-SM 正视图

 

1 )功率模块              2)旁路模块              3)控制模块              4)配电插框盖板

5)假面板                 6)监控显示模块         7 )维修旁路开关        8)资料夹


 

2-9 UPS5000-E-200K-FM 正视图

 

1 )配电插框盖板       2)旁路输入开关        3)维修旁路开关       4)主路输入开关

5)输出开关              6)控制模块               7 )旁路模块              8)功率模块

9)监控显示模块        10)资料夹                 11 )假面板


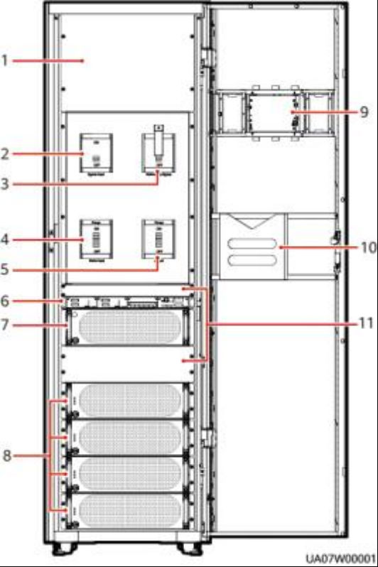
2-10 UPS5000-E-200K-FM(隔离防护)正视图

 

1 )盖板                    2)主路输入开        3)旁路输入开关        4)维修旁路开关

5)输出开关              6)控制模块               7 )旁路模块              8)功率模块

9)监控显示模块        10)资料夹



相关产品
技术支持: 建站ABC | 管理登录