详细说明
华为PDU8000-0630DCV8- BXA001 电池保护开关盒
- : 暂无价格
-
累计评价0 -
|
华为PDU8000-0630DCV8- BXA001 电池保护开关盒
图 2-1 BCB-BOX 外观
( 1 )产品丝印 (2)门锁 (3)搬运抠手
(4)信号线缆出线孔 (5)功率线缆出线孔
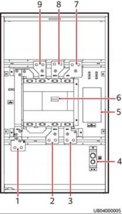
图 2-5 PDU8000-0630DCV8-BXA001 内部结构
( 1 )电池侧正极 (2)电池侧N极 (3)电池侧负极
(4)接地端 (5)BIB控制板 (6)断路器
( 7 )UPS侧负极 (8)UPS侧N极 (9)UPS侧正极









