华为UPS电源UPS5000-A-200kVA
- : 暂无价格
-
累计评价0 -
|
华为UPS电源UPS5000-A-200kVA
图 2-9 UPS 外观( 200K 、300K)
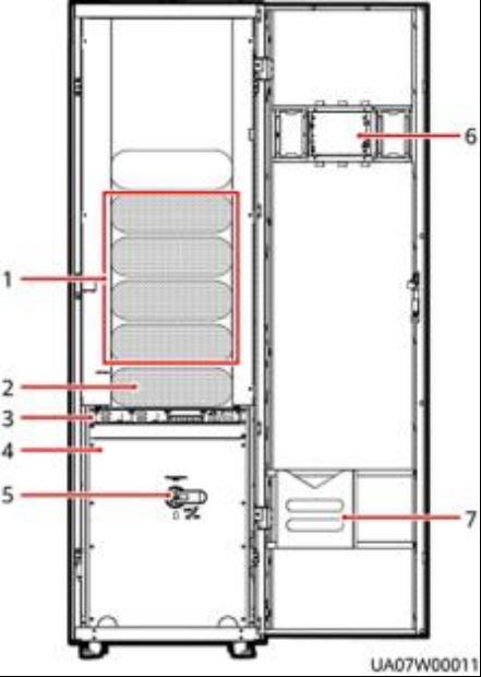
图 2-13 UPS5000-A-200K-ST 产品结构
( 1 )功率单元 (2)旁路单元 (3)控制单元
(4)配电插框盖板 (5)维修旁路开关 (6)监控显示单元
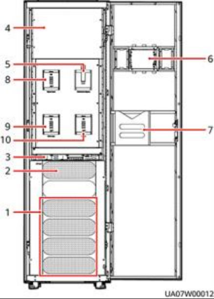
图 2-14 UPS5000-A-200K-FT 产品结构
( 1 )功率单元 (2)旁路单元 (3)控制单元
(4)配电插框盖板 (5)维修旁路开关 (6)监控显示单元
( 7 )资料夹 (8)旁路输入开关 (9)主路输入开关
( 10)输出开关 - -
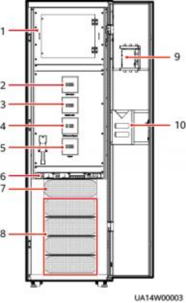
图 2-15 UPS5000-A-200K-FT(隔离防护)产品结构
( 1 )盖板 (2)主路输入开关 (3)旁路输入开关 (4)维修旁路开关
(5)输出开关 (6)控制单元 ( 7 )旁路单元 (8)功率单元
(9)监控显示单元 ( 10)资料夹 - -









