首页>租赁产品>华为ups电源>华为PDU8000-0630 DCV8-BGA001 电池汇 流盒
详细说明

华为PDU8000-0630 DCV8-BGA001 电池汇 流盒

  • 暂无价格
  • 累计评价0
华为PDU8000-0630 DCV8-BGA001 电池汇 流盒

华为PDU8000-0630 DCV8-BGA001 电池汇 流盒

2-1 外观 1

 

 

1 产品丝印                      2  门锁                                    3 搬运扣手

4 产品Logo                               5 功率线缆出线孔


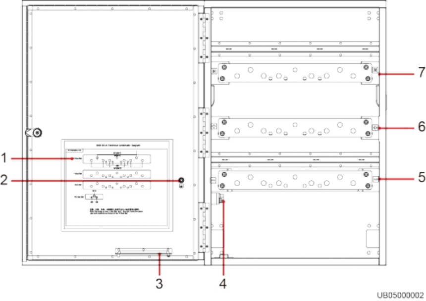
2-3 PDU8000-0630DCV8-BGA001 部结构

 

 

1 接线原理图           2  门板接地端                 3  门支撑杆                   4 接地端

5 负极接线排           6  正极接线排                7  N极接线排

 

 


相关产品
技术支持: 建站ABC | 管理登录