首页>租赁产品>华为ups电源>华为PDU8000-0800 DCV8- BXA001 电池保护开关盒
详细说明

华为PDU8000-0800 DCV8- BXA001 电池保护开关盒

  • 暂无价格
  • 累计评价0
华为PDU8000-0800 DCV8- BXA001 电池保护开关盒

华为PDU8000-0800 DCV8- BXA001 电池保护开关盒

2-1 BCB-BOX 外观

 


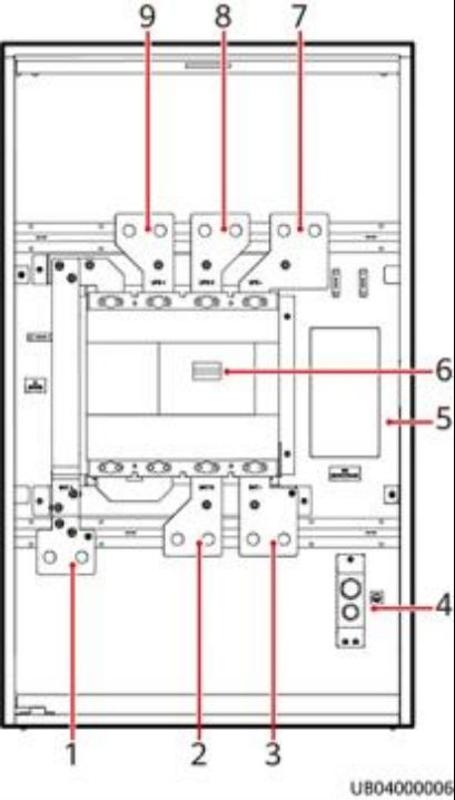
2-6 PDU8000-0800DCV8-BXA001 内部结构

 

 

1 )电池侧正极                    2)电池侧N                     3)电池侧负极

4)接地端                          5BIB控制板                     6)断路器

7 UPS侧负极                    8UPSN                     9UPS侧正极



相关产品
技术支持: 建站ABC | 管理登录